Description
Amoureux du centre-ville et du charme alsacien ? Venez découvrir ce magnifique triplex de 77m² habitables, entièrement repensé par un architecte en 2019 et idéalement situé dans une ruelle donnant sur Grand'Rue.
Reparti sur trois niveaux cet appartement offre des prestations de qualité :
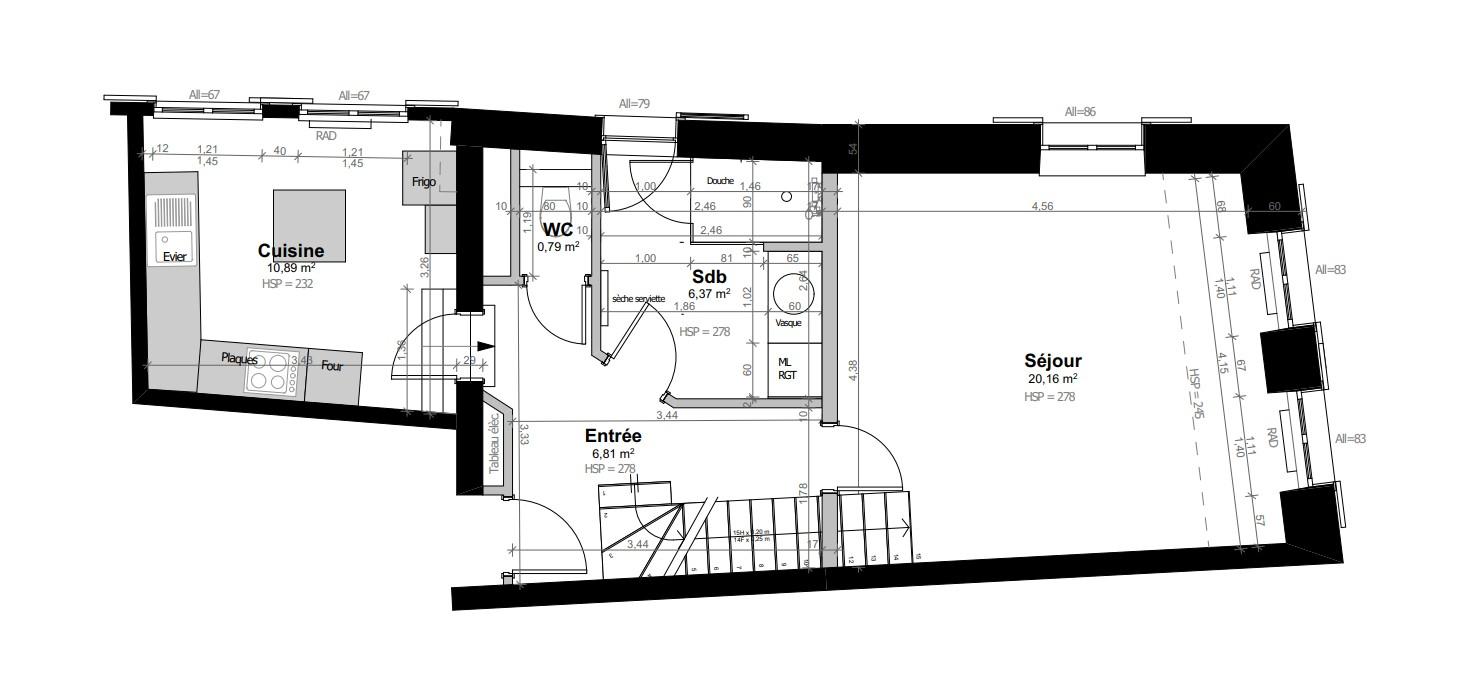
Au premier niveau, une entrée desservant l'ensemble des pièces, un séjour, une cuisine entièrement équipée, une salle d'eau ainsi qu'un W.C. séparé.
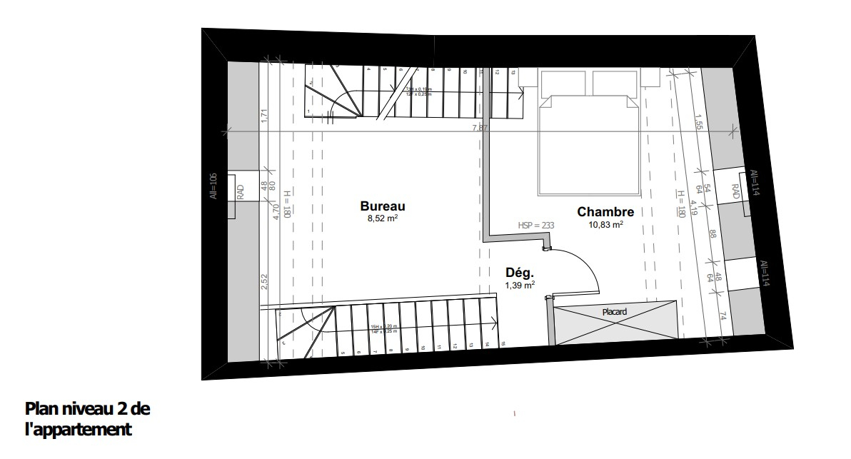
Au deuxième niveau, un espace bureau ouvert, idéal pour le télétravail ainsi qu'une chambre avec placard de rangement.
Au troisième niveau, une mezzanine permettant l'aménagement d'une deuxième chambre ou d'un espace détente.
Le chauffage est électrique (radiateurs récents) ainsi que la production d'eau chaude.
Charges de copropriété annuelle : environ 1850 euros
Taxe foncière : 770 euros
DPE : Consommation énergétique en D / GES B
Emplacement premium : commerces, restaurants, transports et vie culturelle à proximité immédiate.
(4.00 % honoraires TTC à la charge de l'acquéreur.)
Copropriété de 7 lots - dont 6 lots habitation.
Charges annuelles : 1850 euros.
Équipement et confort
-
Surface 77 m²
-
Surface sejour 20 m²
-
Nombre de pièces 3
-
Nombre de chambres 2
-
Nombre de salles d'eau 1
-
Nombre de toilettes 1
-
Chauffage energie Electricite
-
Etat interieur Excellent
-
Etage 3
-
Nombre d' étages 3
-
Etat general Excellent
-
Interphone Oui
Bilan sur les performances énergétiques du bien
Prix moyens de l'énergie indexés sur l'année 2026 (abonnements inclus)
Les informations sur les risques auxquels ce bien est exposé sont disponibles sur le site Géorisques : www.georisques.gouv.fr
Honoraires à charges acquéreur
Prix de vente hors honoraires : 301 925 €
Honoraires : 12 075 €
4 % à charge acquéreur
En copropriété
Nombre de lots : 7
Pas de procédures en cours
Localisation et points d'intérêts
Biens similaires
Appartement - 3 pièces - 64 m²
44600 SAINT NAZAIREAppartement - 4 pièces - 89 m²
68700 CERNAYÊtes-vous intéressé(e) par ce bien ?
Laissez un message
